Nordenwood
Focus Garden Sp. z o.o.
Adres:
B. Krzywoustego 3
61-144 Poznań
gpsr@focusgarden.com
Drewniany domek z płaskim dachem Zann 470x320cm - Nordenwood
Wysyłka w podanym terminie jest liczona od momentu:
- - zaksięgowania wpłaty,
- - złożenia zamówienia za pobraniem,
- - zaakceptowaniaa wniosku ratalnego.
Święta, weekendy i dni wolne od pracy nie wliczają się w termin realizacji zamówienia.
*W okresach wysokiego sezonu, czas wysyłki może być nieco dłuższy – ale obiecujemy, że warto czekać na nasze produkty!
Nowoczesny drewniany domek ogrodowy Zenn to idealne rozwiązanie jako miejsce wypoczynku, biuro lub domek dla gości. Jego kompaktowy rozmiar umożliwia budowę bez konieczności uzyskiwania pozwolenia budowlanego.
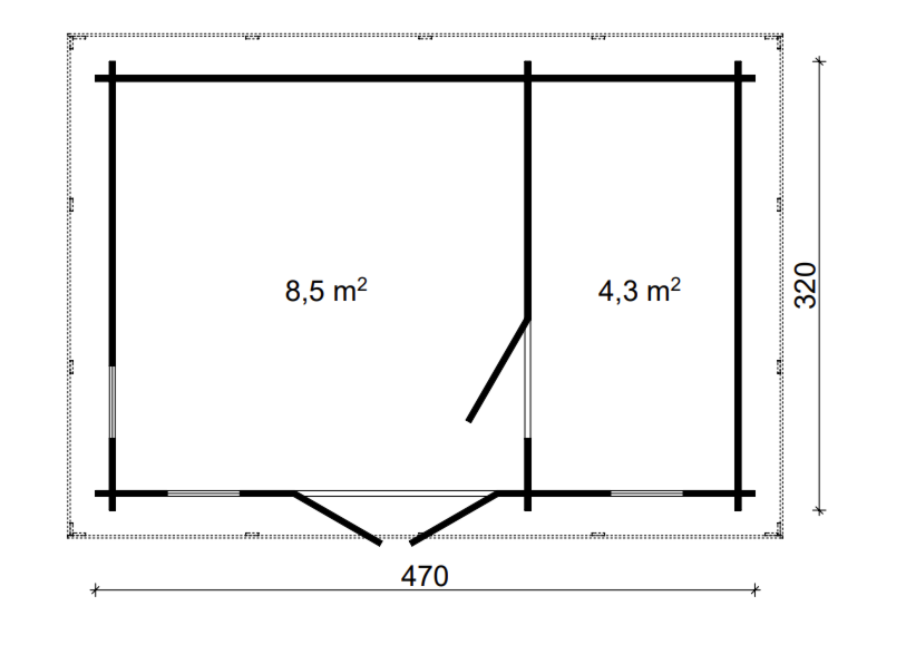
Całkowity wymiar domku wynosi 470x320 cm, a bez wystających elementów konstrukcyjnych 450x300 cm. Ściany o grubości 40 mm zapewniają solidność i trwałość konstrukcji. Przednia ściana ma wysokość 222 cm, a tylna 211 cm. Domek jest zwieńczony płaskim dachem o powierzchni 17,8 m² i minimalnym nachyleniu 2 stopni. Konstrukcja opiera się na impregnowanych belkach podwalinowych, co dodatkowo zwiększa jej wytrzymałość.
Zenn wyposażony jest w podwójne drzwi wejściowe oraz trzy wysokie okna uchylne. Wnętrze podzielono na dwa pomieszczenia o łącznej powierzchni 13,5 m². W głównej części znajdują się dwa okna oraz drzwi prowadzące do mniejszego pokoju z jednym oknem. Domek może pełnić funkcję zarówno gościnnego zakwaterowania, małego biura, jak i zabudowanej altany. Oferujemy również szereg dodatkowych usług, takich jak montaż i malowanie, realizowanych przez profesjonalną ekipę montażową.
- Domek Zenn, dzięki niewielkiej powierzchni zabudowy, można postawić bez konieczności uzyskiwania pozwolenia budowlanego, co znacząco ułatwia i przyspiesza proces budowy.
- Zenn może pełnić różne role, od przytulnego miejsca wypoczynku, przez domowe biuro, aż po domek gościnny, dostosowując się do indywidualnych potrzeb użytkownika.
- Płaski dach oraz minimalistyczna forma domku Zenn doskonale wpisują się w nowoczesną architekturę ogrodową, dodając stylu każdemu otoczeniu.
- Trzy duże, uchylne okna zapewniają doskonałe doświetlenie wnętrza, co sprawia, że pomieszczenia są jasne i przyjazne do użytku przez cały dzień.
- 24 miesiące gwarancji. Zdjęcia mają charakter poglądowy.
Zamawiając nasz domek, oferujemy możliwość skorzystania z profesjonalnej usługi montażu. Jest to opcja, którą rekomendujemy, aby zapewnić najwyższą jakość wykonania oraz bezpieczeństwo użytkowania. Nasi doświadczeni specjaliści zadbają o prawidłowy montaż wszystkich elementów, oszczędzając Twój czas i eliminując ryzyko ewentualnych błędów. Dzięki temu Twój domek będzie gotowy do użytku szybciej, a Ty zyskasz pewność, że konstrukcja spełnia wszelkie wymagania techniczne.
Domek należy montować na stabilnym fundamencie. Informacje o odpowiednim przygotowaniu podłoża znajdziesz tutaj. Konstrukcja jest sprzedawana do samodzielnego montażu, informacje szczegółowe dotyczące montażu znajdziesz tutaj. Klient otrzymując konstrukcję w pakiecie dostaje instrukcję oraz elementy służące do montażu - czas jego realizacji ustalany jest indywidualnie, mozesz również zamówić domek już z opcją montażu co polecamy. Każda konstrukcja jest montowana na podłożu przygotowanym wcześniej przez klienta, ale istnieje możliwość zamówienia takiej usługi po wcześniejszym ustaleniu szczegółów. Teren powinien być wypoziomowany i ustabilizowany. Zależnie od preferencji i możliwości, klient może się zdecydować i przygotować jeden z trzech rodzajów podłoża:
Fundament betonowy: najbardziej rekomendowane rozwiązanie. Fundament powinien wznosić się minimum 10 cm ponad poziom terenu w celu zabezpieczenia konstrukcji przed działaniem wody.
Fundament z kostki brukowej: tak jak w przypadku fundamentu podłoże powinno wznosić się ponad poziom terenu. Zdjęcie poniżej przedstawia własnie ten wariant
Bloczki punktowe: więcej o przygotowaniu podłoża pod bloczki betonowe można przeczytać tutaj: Przygotowanie podłoża z bloczków betonowych


- Wymiar z el. wystającymi: 470x320 cm
- Wymiar bez el. wystających: 450x300 cm
- Grubość ściany: 40 mm
- Wysokość ściany: 211/222 cm
- Wysokość w szczycie: 234 cm
- Powierzchnia zabudowy: 13,5 m2
- Powierzchnia dachu: 17,8 m2
- Kubatura konstrukcji: 28,3 m3
- Kąt nachylenia dachu: 2o
- Wypust dachu: 30 cm
- Grubość deski dachowej: 18 mm
- Grubosć deski podłogowej: 18 mm
- Wymiar belki podwalinowej: 45x70 mm
- Ilość drzwi: 1x 1425x1955 mm, 1x 840x1955 mm
- Ilość okien uchylnych: 3x 515x1890 mm


Malowanie
Kolory, które wybieramy do malowania drewnianych konstrukcji, pokazują, czym malujemy nasze domki, wiaty i garaże! Używamy tylko najwyższej jakości preparatów, które zapewniają trwałość i zadowolenie na długie lata.
Standardowe malowanie polega na jednokrotnym nałożeniu preparatu Remmers HK Lasur, które należy odświeżyć po kilku miesiącach. Paleta kolorów imituje różne gatunki drewna, uwydatniając jego strukturę. Farba chroni przed sinizną, zgnilizną, pleśnią, insektami, UV i wilgocią, nie pęka i nie łuszczy się, dając naturalny matowy efekt. Wzornik znajdziesz tutaj - WZORNIK
Transport domków drewnianych odbywa się za pomocą samochodów wielkogabarytowych wymaga odpowiedniej drogi dojazdowej ze względu na rozmiar ładunku. Koszty takiego transportu liczone są automatycznie po podaniu adresu dostawy podczas składania zamówienia.
Cennik transportu:
| 0 - 50 km | 150zł |
| 51 - 100km | 300zł |
| 101 - 150 km | 450zł |
| 151 - 200 km | 600zł |
| 201 - 250 km | 750zł |
| 251 - 300 km | 900zł |
| 301 - 350 km | 1050zł |
| 351 - 400 km | 1200zł |
| 401 - 450 km | 1350zł |
| pow. 451km | 1500zł |


