Nordenwood
Focus Garden Sp. z o.o.
Adres:
B. Krzywoustego 3
61-144 Poznań
gpsr@focusgarden.com
Domek letniskowy stodoła DARA z drewna 65m2 - Nordenwood
Wysyłka w podanym terminie jest liczona od momentu:
- zaksięgowania wpłaty,
- złożenia zamówienia za pobraniem,
- zaakceptowaniaa wniosku ratalnego.
Święta, weekendy i dni wolne od pracy nie wliczają się w termin realizacji zamówienia.
*W okresach wysokiego sezonu, czas wysyłki może być nieco dłuższy – ale obiecujemy, że warto czekać na nasze produkty!
Dara to domek z poddaszem użytkowym. Unowocześnioną bryłę wzbogacono w stylowe lamele i dużą ilość przeszkleń na fasadzie. Dara to modna konstrukcja w typie stodoły. Budynek oferuje duży metraż, który można zaaranżować jako przestrzeń rekreacyjną lub biurową. Dara to świetna inwestycja na wynajem czy wypoczynek z rodziną.
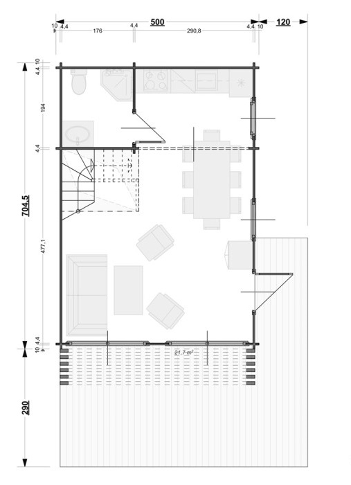
Dara to domek wykonany z drewna świerku skandynawskiego poddanego obróbce cyfrowej, dzięki której wszystkie jego elementy dokładnie do siebie pasują oraz umożliwiają szybki, łatwy montaż. Można przeprowadzić go samodzielnie lub zdecydować się na pomoc naszej ekipy monterskiej. Dara ma 500x704,3 cm. Dwuspadowy dach z 19-milimetrowej deski zajmuje powierzchnię 51 m2. Znajdujący się na parterze taras w kształcie litery L ma 21,7 m2.
Domek można zmodyfikować pod względem obecności oraz liczby ścianek działowych, a także umiejscowienia okien i drzwi. Proponujemy także opcje dodatkowe, które pozwalają zamienić domek letniskowy w domek całoroczny. Klienci mogą skorzystać z usług, m.in. malowania elewacji, wykonania ocieplenia czy przygotowania instalacji wodno-kanalizacyjnej oraz elektrycznej. Pełna lista usług dodatkowych znajduje się w konfiguratorze.
Wejście do domku znajduje się w bocznej części tarasu. Na dole wydzielono dużą przestrzeń, którą można zagospodarować na salon z kuchnią i jadalnią. Obok niej mieści się niewielkie pomieszczenie idealne na łazienkę. Na parterze zamontowano dwa dwuskrzydłowe okna balkonowe oraz dwa okna jednoskrzydłowe, które dostarczają do wnętrza mnóstwo światła.
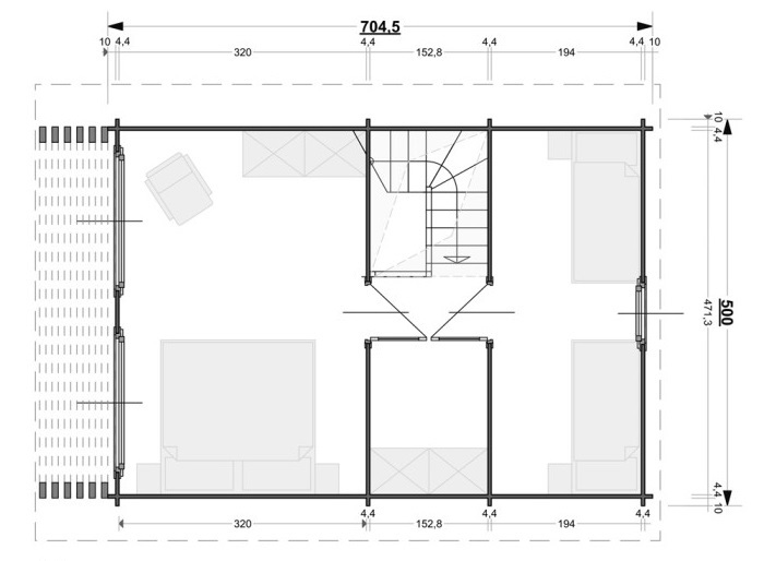
W dolnej części domku mieszczą się także schody prowadzące na poddasze. Na piętrze znajdują się dwie duże sypialnie, z czego jedna z nich jest wyposażona w wysokie okno balkonowe, a druga w okna w kształcie trapezów prostokątnych. Pomiędzy pokojami wydzielono sporą przestrzeń, którą można zaaranżować na schowek lub garderobę.


- Stylowa bryła typu stodoła, z lamelami i dużą ilością przeszkleń.
- Możliwość aranżacji przestrzeni na rekreacyjną, biurową lub mieszkalną.
- Szprosy w oknach wyłącznie w tym modelu domku
- Przestrzeń na poddaszu – Możliwość zagospodarowania dodatkowej przestrzeni na schowek lub garderobę.
- Opcje całorocznego użytkowania – Dodatki, takie jak ocieplenie i instalacje wodno-kanalizacyjne oraz elektryczne.
- Wykonany z wysokiej jakości świerku skandynawskiego
- Doskonale sprawdzi się jako biuro, domek dla gości.
- 24 miesiące gwarancji
Zdjęcia i wizualizacja na stronie mają charakter wyłącznie poglądowy


Zamawiając nasz domek, oferujemy możliwość skorzystania z profesjonalnej usługi montażu. Jest to opcja, którą rekomendujemy, aby zapewnić najwyższą jakość wykonania oraz bezpieczeństwo użytkowania. Nasi doświadczeni specjaliści zadbają o prawidłowy montaż wszystkich elementów, oszczędzając Twój czas i eliminując ryzyko ewentualnych błędów. Dzięki temu Twój domek będzie gotowy do użytku szybciej, a Ty zyskasz pewność, że konstrukcja spełnia wszelkie wymagania techniczne.
Domek należy montować na stabilnym fundamencie. Informacje o odpowiednim przygotowaniu podłoża znajdziesz tutaj. Konstrukcja jest sprzedawana do samodzielnego montażu, informacje szczegółowe dotyczące montażu znajdziesz tutaj. Klient otrzymując konstrukcję w pakiecie dostaje instrukcję oraz elementy służące do montażu - czas jego realizacji ustalany jest indywidualnie, mozesz również zamówić domek już z opcją montażu co polecamy. Każda konstrukcja jest montowana na podłożu przygotowanym wcześniej przez klienta, ale istnieje możliwość zamówienia takiej usługi po wcześniejszym ustaleniu szczegółów. Teren powinien być wypoziomowany i ustabilizowany. Zależnie od preferencji i możliwości, klient może się zdecydować i przygotować jeden z trzech rodzajów podłoża:
Fundament betonowy: najbardziej rekomendowane rozwiązanie. Fundament powinien wznosić się minimum 10 cm ponad poziom terenu w celu zabezpieczenia konstrukcji przed działaniem wody.
Fundament z kostki brukowej: tak jak w przypadku fundamentu podłoże powinno wznosić się ponad poziom terenu. Zdjęcie poniżej przedstawia własnie ten wariant
Bloczki punktowe: więcej o przygotowaniu podłoża pod bloczki betonowe można przeczytać tutaj: Przygotowanie podłoża z bloczków betonowych


- Wymiar z el. wystającymi: 500x704,3 cm
- Wymiar bez el. wystających: 480x684,3 cm
- Grubość ściany: 44 mm
- Wysokość ściany: 250 cm
- Wysokość w szczycie: 521 cm
- Powierzchnia zabudowy: 65 + 21 m2
- Powierzchnia dachu: 51 m2
- Kąt nachylenia dachu: 30o
- Wypust dachu: 40 cm
- Grubość deski dachowej: 19 mm
- Grubosć deski podłogowej: 28 mm
- Wymiar belki podwalinowej: 45x95 mm
- Ilość drzwi: 1x 900x2050 mm, 3x 800x2050 mm
- Ilość okien nieotwieralnych: 2x 900x2050mm (ISO), 2x 1900x1900 mm
- Ilość okien uch. rozw.: 1x 900x2050 mm (ISO)
- Ilość podw. okien uch. rozw.: 2x 1900x2050 mm (ISO)




Malowanie
Kolory, które wybieramy do malowania drewnianych konstrukcji, pokazują, czym malujemy nasze domki, wiaty i garaże! Używamy tylko najwyższej jakości preparatów, które zapewniają trwałość i zadowolenie na długie lata.
Standardowe malowanie polega na jednokrotnym nałożeniu preparatu Remmers HK Lasur, które należy odświeżyć po kilku miesiącach. Paleta kolorów imituje różne gatunki drewna, uwydatniając jego strukturę. Farba chroni przed sinizną, zgnilizną, pleśnią, insektami, UV i wilgocią, nie pęka i nie łuszczy się, dając naturalny matowy efekt. Wzornik znajdziesz tutaj - WZORNIK
Remmers HK Lasur Grey Protect dostępny w różnych odcieniach szarości. Wymaga on dwukrotnego nałożenia, co podwaja koszt w porównaniu do zwykłego HK-Lasur (jest to ujęte w konfiguracji). Farba ma te same właściwości co podstawowy HK-Lasur. Wzornik znajdziesz tutaj - WZORNIK
Remmers Deckfarbe - to w pełni kryjące, 3-warstwowe malowanie, które całkowicie zakrywa strukturę drewna. Jest bardziej czasochłonne i droższe (400% ceny malowania podstawowego), ale tworzy elastyczną, jedwabistą matową powierzchnię, która się nie złuszcza. Wzornik znajdziesz tutaj - WZORNIK
Transport domków drewnianych odbywa się za pomocą samochodów wielkogabarytowych wymaga odpowiedniej drogi dojazdowej ze względu na rozmiar ładunku. Koszty takiego transportu liczone są automatycznie po podaniu adresu dostawy podczas składania zamówienia.


Cennik transportu:
| 0 - 50 km | 400zł |
| 51 - 100km | 800zł |
| 101 - 150 km | 1200zł |
| 151 - 200 km | 1600zł |
| 201 - 250 km | 2000zł |
| 251 - 300 km | 2400zł |
| 301 - 350 km | 2800zł |
| 351 - 400 km | 3200zł |
| 401 - 450 km | 3600zł |
| pow. 451km | 4000zł |





