Nordenwood
Focus Garden Sp. z o.o.
Adres:
B. Krzywoustego 3
61-144 Poznań
gpsr@focusgarden.com
Domek całoroczny Ontar 6x6, parterowy - Nordenwood
Wysyłka w podanym terminie jest liczona od momentu:
- - zaksięgowania wpłaty,
- - złożenia zamówienia za pobraniem,
- - zaakceptowaniaa wniosku ratalnego.
Święta, weekendy i dni wolne od pracy nie wliczają się w termin realizacji zamówienia.
*W okresach wysokiego sezonu, czas wysyłki może być nieco dłuższy – ale obiecujemy, że warto czekać na nasze produkty!
Ontar 6x6 to uniwersalny projekt domku drewnianego, który można zaaranżować na wiele sposobów. Budynek znakomicie sprawdzi się jako biuro, domek rekreacyjny na działce ROD czy domek letniskowy. Jego metraż nie przekracza 70 m2, dlatego można postawić go bez uzyskania pozwolenia na budowę. Ontar 6x6 zapewnia dużą powierzchnię użytkową i szerokie możliwości modyfikacji projektu.
Domek Ontar 6x6 wykonany jest z wysokojakościowego świerku skandynawskiego. W projekcie uwzględniono duże grubości poszczególnych elementów konstrukcyjnych, co przekłada się na trwałość i stabilność konstrukcji. Ściany mają 45 mm, podłogi – 28 mm, a dach 19 mm grubości. Zewnętrzne wymiary domku to 600x600 cm. Jego powierzchnia całkowita obejmuje 32,6 m2. Powierzchnia dachu ma natomiast aż 47 m2 – w przedniej części jest on zakończony 100-centymetrowym wypustem, który świetnie sprawdza się jako schronienie przed deszczem czy słońcem. Można umieścić pod nim zestaw ogrodowy zestaw wypoczynkowy – fotele ze stolikiem i cieszyć się przyjemnym wypoczynkiem.
W domku Ontar 6x6 zamontowano dwuskrzydłowe, przeszklone drzwi oraz podwójne okno uchylno-rozwierane. Drugie okno umieszczono z lewej strony budynku. Na życzenie klienta można przenieść je w inne miejsce. Zastosowana stolarka okienna i drzwiowa wpuszcza do wnętrza mnóstwo światła, dzięki czemu jest ono pięknie rozświetlone. Domek Ontar 6x6 ma prostą konstrukcję – składa się z precyzyjnie wykończonych elementów, które idealnie do siebie pasują. Dlatego jego montaż nie powinien sprawiać większych problemów. Przypominamy jednak o dostępności usługi złożenia domku. Udostępniamy również szereg opcji dodatkowych, takich jak ocieplenie dachu, ścian i podłogi, montaż instalacji elektrycznej i wodno-kanalizacyjnej czy wybór preferowanego koloru elewacji. Wnętrze można podzielić ściankami działowymi i uzupełnić je o piecyk. Wystarczy kilka dodatkowych zabiegów, by zamienić projekt Ontar 6x6 w domek całoroczny, idealny do spędzania czasu o każdej porze roku.




-
Przeszklone drzwi oraz okna wpuszczają dużo światła, rozjaśniając wnętrze.
-
Dach z 100-centymetrowym wypustem idealnie sprawdza się jako osłona przed słońcem lub deszczem, co umożliwia relaks na świeżym powietrzu.
-
Budowa tego domku nie wymaga pozwolenia na budowę
-
Szeroka gama opcji dodatkowych takich jak montaż, ocieplenie czy malowanie
-
Wykonany z wysokiej jakości świerku skandynawskiego
-
Doskonale sprawdzi się jako biuro, domek dla gości lub działkę
-
24 miesiące gwarancji
Zdjęcia i wizualizacja na stronie mają charakter wyłącznie poglądowy


Zamawiając nasz domek, oferujemy możliwość skorzystania z profesjonalnej usługi montażu. Jest to opcja, którą rekomendujemy, aby zapewnić najwyższą jakość wykonania oraz bezpieczeństwo użytkowania. Nasi doświadczeni specjaliści zadbają o prawidłowy montaż wszystkich elementów, oszczędzając Twój czas i eliminując ryzyko ewentualnych błędów. Dzięki temu Twój domek będzie gotowy do użytku szybciej, a Ty zyskasz pewność, że konstrukcja spełnia wszelkie wymagania techniczne.
Domek należy montować na stabilnym fundamencie. Informacje o odpowiednim przygotowaniu podłoża znajdziesz tutaj. Konstrukcja jest sprzedawana do samodzielnego montażu, informacje szczegółowe dotyczące montażu znajdziesz tutaj. Klient otrzymując konstrukcję w pakiecie dostaje instrukcję oraz elementy służące do montażu - czas jego realizacji ustalany jest indywidualnie, mozesz również zamówić domek już z opcją montażu co polecamy. Każda konstrukcja jest montowana na podłożu przygotowanym wcześniej przez klienta, ale istnieje możliwość zamówienia takiej usługi po wcześniejszym ustaleniu szczegółów. Teren powinien być wypoziomowany i ustabilizowany. Zależnie od preferencji i możliwości, klient może się zdecydować i przygotować jeden z trzech rodzajów podłoża:
Fundament betonowy: najbardziej rekomendowane rozwiązanie. Fundament powinien wznosić się minimum 10 cm ponad poziom terenu w celu zabezpieczenia konstrukcji przed działaniem wody.
Fundament z kostki brukowej: tak jak w przypadku fundamentu podłoże powinno wznosić się ponad poziom terenu. Zdjęcie poniżej przedstawia własnie ten wariant
Bloczki punktowe: więcej o przygotowaniu podłoża pod bloczki betonowe można przeczytać tutaj: Przygotowanie podłoża z bloczków betonowych


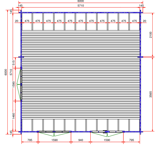
- Wymiar z el. wystającymi: 600x600 cm
- Wymiar bez el. wystających: 580x580 cm
- Grubość ściany: 45 mm
- Wysokość ściany: 237 cm
- Wysokość w szczycie: 323 cm
- Powierzchnia zabudowy: 32,6 m2
- Powierzchnia dachu: 47 m2
- Kąt nachylenia dachu: 15o
- Wypust dachu: 100 cm
- Grubość deski dachowej: 19 mm
- Grubosć deski podłogowej: 28 mm
- Ilość drzwi: 1x 1560x1900 mm
- Ilość okien nieotwieralnych: 1x 1560x2020 mm
- Ilość okien uchylnych: -
- Ilość okien rozwieranych: -
- Ilość okien uch. rozw.: -
- Ilość podw. okien uch. rozw.: 2x 1560x1050 mm






Malowanie
Kolory, które wybieramy do malowania drewnianych konstrukcji, pokazują, czym malujemy nasze domki, wiaty i garaże! Używamy tylko najwyższej jakości preparatów, które zapewniają trwałość i zadowolenie na długie lata.
Standardowe malowanie polega na jednokrotnym nałożeniu preparatu Remmers HK Lasur, które należy odświeżyć po kilku miesiącach. Paleta kolorów imituje różne gatunki drewna, uwydatniając jego strukturę. Farba chroni przed sinizną, zgnilizną, pleśnią, insektami, UV i wilgocią, nie pęka i nie łuszczy się, dając naturalny matowy efekt. Wzornik znajdziesz tutaj - WZORNIK
Remmers HK Lasur Grey Protect dostępny w różnych odcieniach szarości. Wymaga on dwukrotnego nałożenia, co podwaja koszt w porównaniu do zwykłego HK-Lasur (jest to ujęte w konfiguracji). Farba ma te same właściwości co podstawowy HK-Lasur. Wzornik znajdziesz tutaj - WZORNIK
Remmers Deckfarbe - to w pełni kryjące, 3-warstwowe malowanie, które całkowicie zakrywa strukturę drewna. Jest bardziej czasochłonne i droższe (400% ceny malowania podstawowego), ale tworzy elastyczną, jedwabistą matową powierzchnię, która się nie złuszcza. Wzornik znajdziesz tutaj - WZORNIK
Transport domków drewnianych odbywa się za pomocą samochodów wielkogabarytowych wymaga odpowiedniej drogi dojazdowej ze względu na rozmiar ładunku. Koszty takiego transportu liczone są automatycznie po podaniu adresu dostawy podczas składania zamówienia.


Cennik transportu:
| 0 - 50 km | 150zł |
| 51 - 100km | 300zł |
| 101 - 150 km | 450zł |
| 151 - 200 km | 600zł |
| 201 - 250 km | 750zł |
| 251 - 300 km | 900zł |
| 301 - 350 km | 1050zł |
| 351 - 400 km | 1200zł |
| 401 - 450 km | 1350zł |
| pow. 451km | 1500zł |


